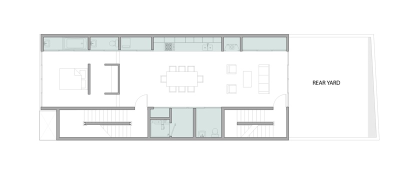
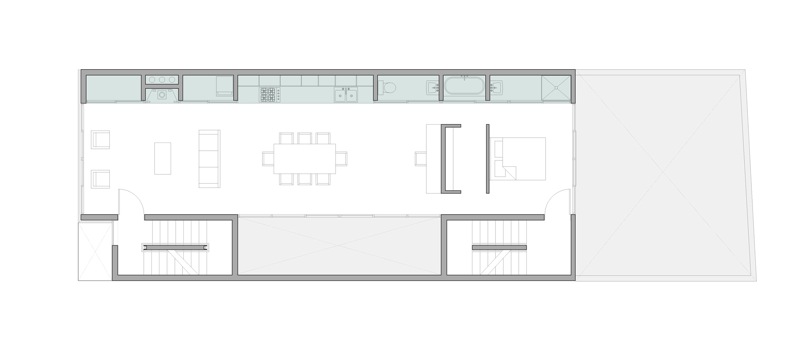
Pinch me I’m giddy. I love this new renovation in San Francisco b Natoma Architects. They’ve retained the unique look and feel only found in the city by the Bay but there are several modern touches that push this building into the future. The perforated metal facade is the most noticeable addition, providing shade and privacy. The interior is an minimal as it gets without going overtly stark.
Via: Arch Daily
Designer: Stanley Saitowitz | Natoma Architects

0 comments:
Post a Comment